,
TEAM
︎
︎
︎
︎︎︎
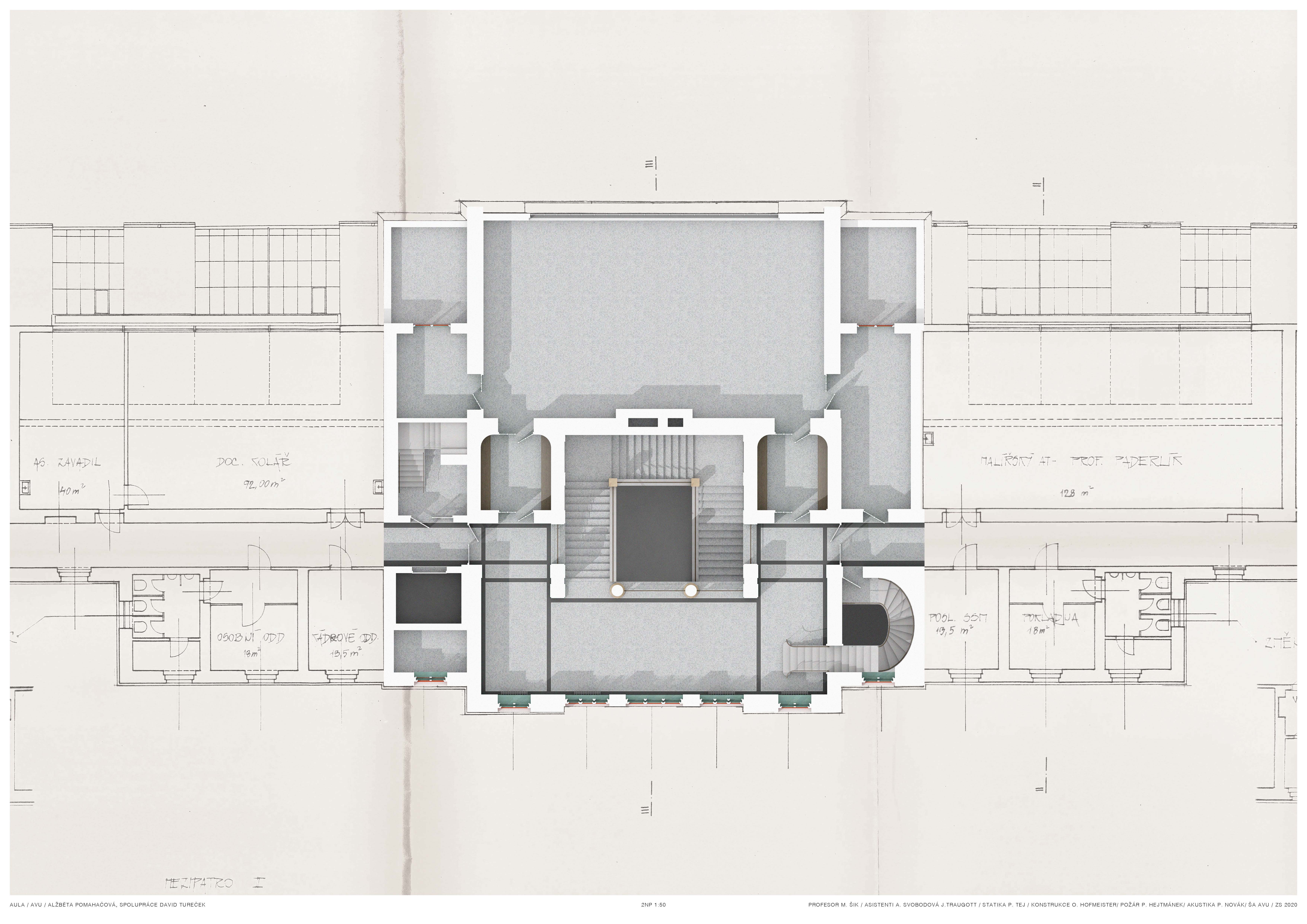
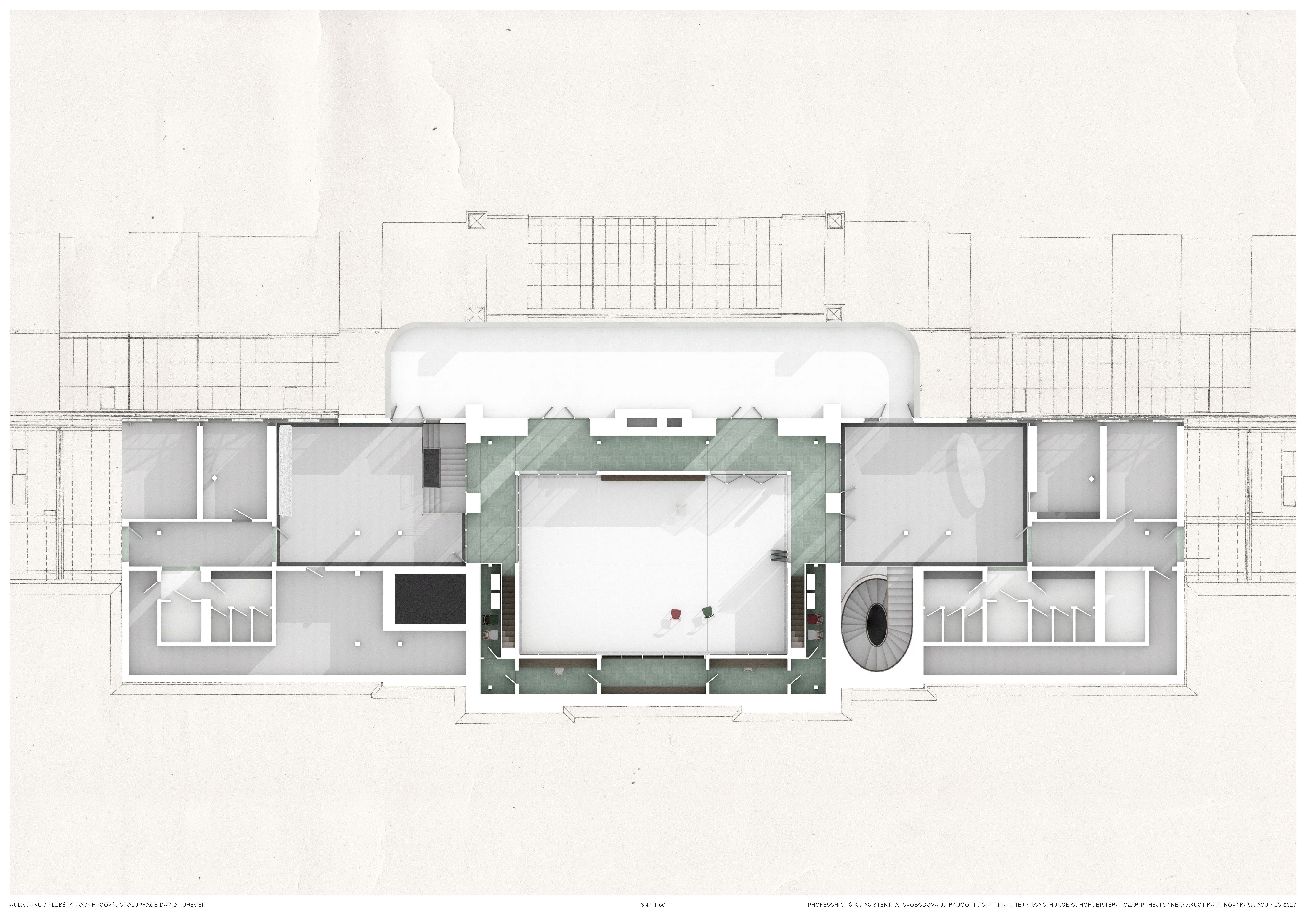
AULA AVU
ALŽBĚTA POMAHAČOVÁ
© 2025 | All Rights Reserved | Prof. Miroslav Šik ETHZ Arch. BSA SIA Dr.h.c. | škola architektury AVU